既存建築物の遵法性調査のご案内
平成17年に発生した姉歯耐震偽装事件以降、建築確認申請の審査業務が厳格化しております。申請敷地内に検査済証のない既存建築物が存在する場合、民間審査機関は確認申請受付拒否や県・市などの公的審査機関については、適法への改善が条件になります。
小規模な物置等の建築確認申請であっても敷地内に違法な建築物があると、適法になるように改修するか、又は出来ない場合は撤去を審査機関から指導され、完成時期の遅れ、そして、大幅な予算オーバーになってしまいます。
また、用途変更を行う場合、既存建物の適法性や検査済証の有無を事前調査しないと確認申請が通らない可能性があります。
このことを未然に防ぐためには、建築行為を行う前に敷地内にある建築物の遵法性調査行い、改善事項を把握しておくことが求められています。
また、この調査と共に、健康被害の原因である含有アスベスト建材の使用時期の照合と耐震診断の必要性の有無も合わせて調査することをお勧めします。
近年、企業のコンプライアンスの徹底が求められている時代、先ずは自社施設の法令遵守の状況を、これを機に確認して見てはどうでしょうか。
-
遵法性調査の対象建築物
・敷地内に確認申請の検査済証がない建築物がある場合
・確認申請を提出していない建築物や増築部分がある場合(プレハブ物置・カーポート等も含む)
・間仕切り壁の撤去などを行っている場合
・消防設備や非常用照明・排煙設備の点検を行っていない場合
-
調査対象法令
・建築基準法
・消防法(危険物に関する法令は除く)
・屋外広告物規制(県条例)

-
現地調査の内容
・図面・書類に記載されていない建築物やその部分の実測
・ブロック塀の安全性(確認申請の必要事項になります。)
・非常用照明の点灯確認
・排煙設備・防火戸の作動確認
・法的に重要な各仕様の確認
・含有アスベスト建材の確認(建設時期により、含有の可能性を調べます。)

-
調査報告書の内容
① 敷地に対する建物の配置がわかる図面(配置図)を作成し法的根拠を記載します。
② 法的に不適合に部分がある場合は写真に改善方法を明記します。【例3】
③ 適合性の根拠となる書類や資料を添付します。
④ 確認済証、検査済証の無い建築物については、行政機関で調査し紛失した書類があれば証明書を発行してもらいます。【例2】
⑤ 各確認事項に不良があれば図面に記載します。
※ 検査済証のない建築物の場合は国交省の「既存建築物の現況調査ガイドライン(新ガイドライン)」に則った調査を行い、解決策の提案、又は図面の復元を行います。
-
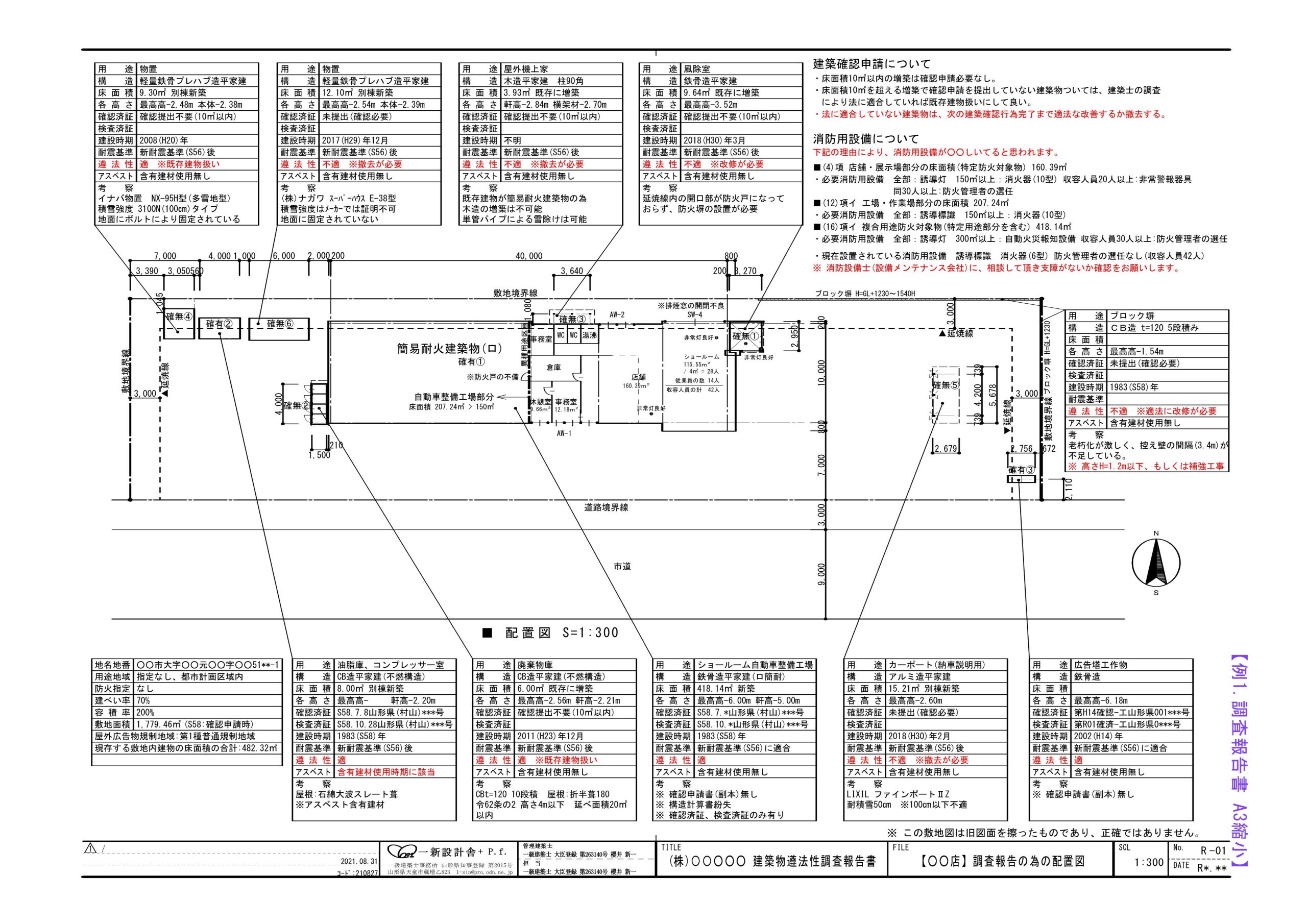
建築物別調査報告書の記載事項 【例1】
① 用途・構造・床面積・各高さ・確認済証の番号・検査済証の番号・建設時期・遵法性の結果
・耐震診断の必要性・含有アスベスト建材の使用時期の照合・考察(法的根拠)
② 将来建築行為が行なわれる時の建築確認申請の法的資料になるよう、弊社の図面枠に一級建築士氏名と番号を記載します。
③ 法的根拠を記載した配置図をCADデータ化し、将来建築行為を行う時の設計者が容易に使えるようにします。(現地調査費の削減になります。)
④ 法的に不適合な部分がある場合の改善時期は、次回の建築行為より確認申請を提出し完了検査を受けるまでになります。
-
調査に必要な書類(準備をお願いします)
□ 建築確認申請に係わった書類(現存するもの全て)
□ 工作物(看板等)の確認申請に係わった書類
□ 建築物の設計図・構造計算書
□ 消防設備の点検記録
□ 建築物の定期報告書
□ 建築物の固定資産税の台帳(建設時期がわかる資料)

-
遵法性調査のメリット
・将来増改築(建築行為)を行う時に、申請敷地全体の適法性を事前に把握することにより、改善事項が明確になるため、完成時期の遅れや予定外の予算オーバーを防ぐことが出来ます。また、現地調査費用の削減になります。
・敷地内の建築物の配置図をデータ化することパソコンよる一括管理が可能になり、各種申請図や届出等に利用できます。
・非常用照明や排煙設備、防火戸の開閉の状況を点検することにより、災害時の法的避難規定を遵守しているか確認でき、万が一のことが起こった場合の管理責任を守ることが出来ます。
・その土地を建築物と共に売買するようなことがあった場合、重要事項の説明に利用することが出来ます。

-
発注までの流れ
① 遵守性調査の内容をご理解して頂ければ、業務見積の為の作業に入ります。
② 先ずはお手数ですが「調査に必要な書類」の有無をご確認下さい。
③ 確認申請の図面に配置図が有ればコピーの提供をお願いします。無い場合は、Googleマップにて代用します。
④ 配置図を基に、現地の下見を行います。これにより調査の作業量を算出し、見積書を提出致します。
⑤ 提出した見積書の内容をご確認頂き、ご承諾して頂ければ発注になります。
発注に至らなかった場合は、料金は発生致しません。
⑥ 発注後、「調査に必要な書類」をお借りし、現地調査を行います。
報告書提出は現地調査を行ってから1ヶ月程度です。

- 業務エリア
調査エリアは、山形県全域と仙台市青葉区周辺になります。
【例1】
【例2-3】
-
主な調査実績
様々な業種の方から目的に応じた調査依頼を受けております。
業務が長期に渡る場合もございますので、お早めにご一報下さい。
| 年 | 件名 | 規模[用途] | 場所 | 内容 | 目的 | 依頼先業種 |
| 2026 | L事務所既存建築物遵法性調査業務 | 木造平屋建 | 山形県山形市 | 既存建物遵法性調査 | 不動産売買契約 | ゼネコン設計部 |
| 2026 | Y貸店舗新装工事 | RC造2階建一部木造 | 山形県山形市 | 申請履歴・遵法性調査 | 賃貸借契約 | 店舗設計施工 |
| 2025 | S邸耐震診断耐震補強工事 | 木造2階建[住宅] | 山形県天童市 | 木造住宅耐震診断 | 耐震補強 | 個人(市補助事業) |
| 2025 | 協友アグリ山形工場倉庫新築工事 | 既存建物18棟・看板 | 山形県天童市 | 申請履歴・遵法性調査 | 建築確認申請 | ゼネコン設計部 |
| 2025 | 陸上自衛隊神町駐屯田仮設教場 | 既存建物124棟 | 山形県東根市 | 既存建築物配置図作成 | 仮設許可申請 | ユニットハウス事業 |
| 2025 | 賃貸住宅_向山新築工事 | 木造3階建[共同住宅] | 宮城県仙台市 | 計画建築物の遵法性検討 | 建築確認申請 | 内装設計施工 |
| 2024 | 東北パイオニア㈱耐震診断業務 | 鉄骨造・RC造3階建 | 山形県天童市 | 申請履歴調査・図面復元 | 耐震診断 | 製造業 |
| 2024 | 賃貸住宅_台原新築工事 | 木造2階建[長屋] | 宮城県仙台市 | 計画建築物の遵法性検討 | 建築確認申請 | 内装設計施工 |
| 2023 | K様邸新築工事 | 木造2階建[小屋] | 山形県天童市 | 既存建物耐震性調査 | 違反建築物改善 | 個人 |
| 2023 | オーヌマ自動車増築改修工事 | 既存建物3棟・看板 | 山形県天童市 | 既存建物遵法性調査 | 建築確認申請 | ゼネコン設計部 |
| 2022 | 十日町学生寮改修工事 | 軽量鉄骨造2階建 | 山形県山形市 | 旅館からの用途変更 | 用途変更工事 | 住宅施工設計部 |
| 2021 | 介護施設米喜家浸水避難所増築工事 | 木造平屋建 | 山形県山形市 | 既存建物耐震性調査 | 建築確認申請 | 介護施設運営 |
| 2020 | 鈴川青野線業務 | 地下1階地上3階 | 山形県山形市 | 構造適判のルート選定 | 移転補償の算定 | 測量事務所 |
| 2020 | メグマシナリー㈱事務所改修増築工事 | 鉄骨造平屋建[事務所] | 山形県天童市 | 既存建築物調書の作成 | 建築確認申請 | 住宅施工設計部 |
| 2020 | 旅篭町八日町線用地調査等事務委託 | 木造2階建[旅館] | 山形県山形市 | 照応建物の設計案の作成 | 移転補償の算定 | 測量事務所 |
| 2019 | 既存パイロンサイン完了申請業務 | 県内3工作物[看板] | 山形県内各所 | 検査済証の交付申請 | 検査済証の取得 | 看板デザイン施工 |
| 2019 | 第4金井保育クラブ改修工事 | RC造2階建[学童保育] | 山形県山形市 | 銀行からの用途変更 | 用途変更工事 | 社会福祉法人 |
| 2019 | 山形スバル㈱店舗遵法性調査業務 | 県内6店舗 | 山形県内各所 | 遵法性調査と改善計画 | 施設の遵法性改善 | 自動車販売 |
-
既存建築物の活用の円滑化に係る解説動画


